






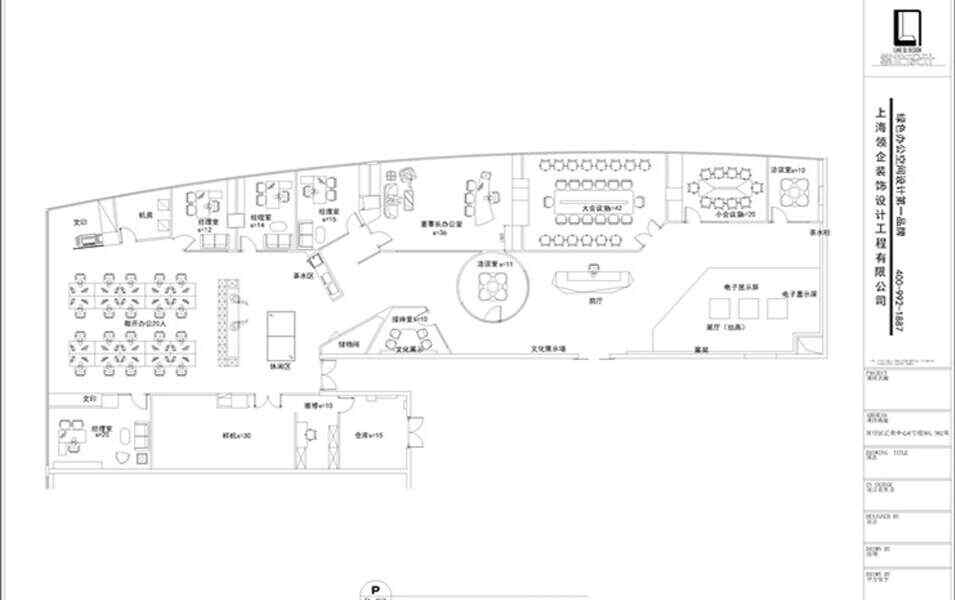
项目名称:常州快克锡焊股份上海办公总部办公室装修设计效果图
项目地址:闵行区正荣中心6号楼5楼
面积:860平
公司介绍:快克在锡焊行业的技术领先和品质优势已得到国内外电子工程师的普遍认可,公司研发的系列“无铅控温电焊台”、“无铅智能热风拆焊台”等产品完全可以替代国外同类产品,多年来一直引领国内整个行业的技术主流发展方向,并荣获国家多项专利??炜似窘枳判酆竦难蟹⑹盗υ诠谧钤缪蟹⒊龈髦?ldquo;红外加热型、热风加热型BGA返修设备”,打破了以往进口设备一统天下的格局,奠定了快克在焊接、返修领域的领导地位。
设计介绍:主要展示公司前台、走道设计、会议室、办公区、休闲区、等各个区域实物图,设计师们主要以黑白色为主,蓝色点缀,流动式灯管设计为亮点塑造出符合电子技术行业现代风办公室。
价格保证
清单式报价,价格透明
量身定制
一对一量身定制设计方案
环保承诺
所有材料均保证为环保材料
7*24小时维保服务
快速响应,全年无休